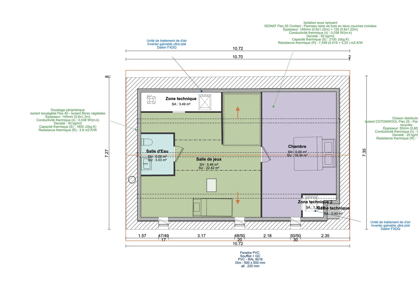
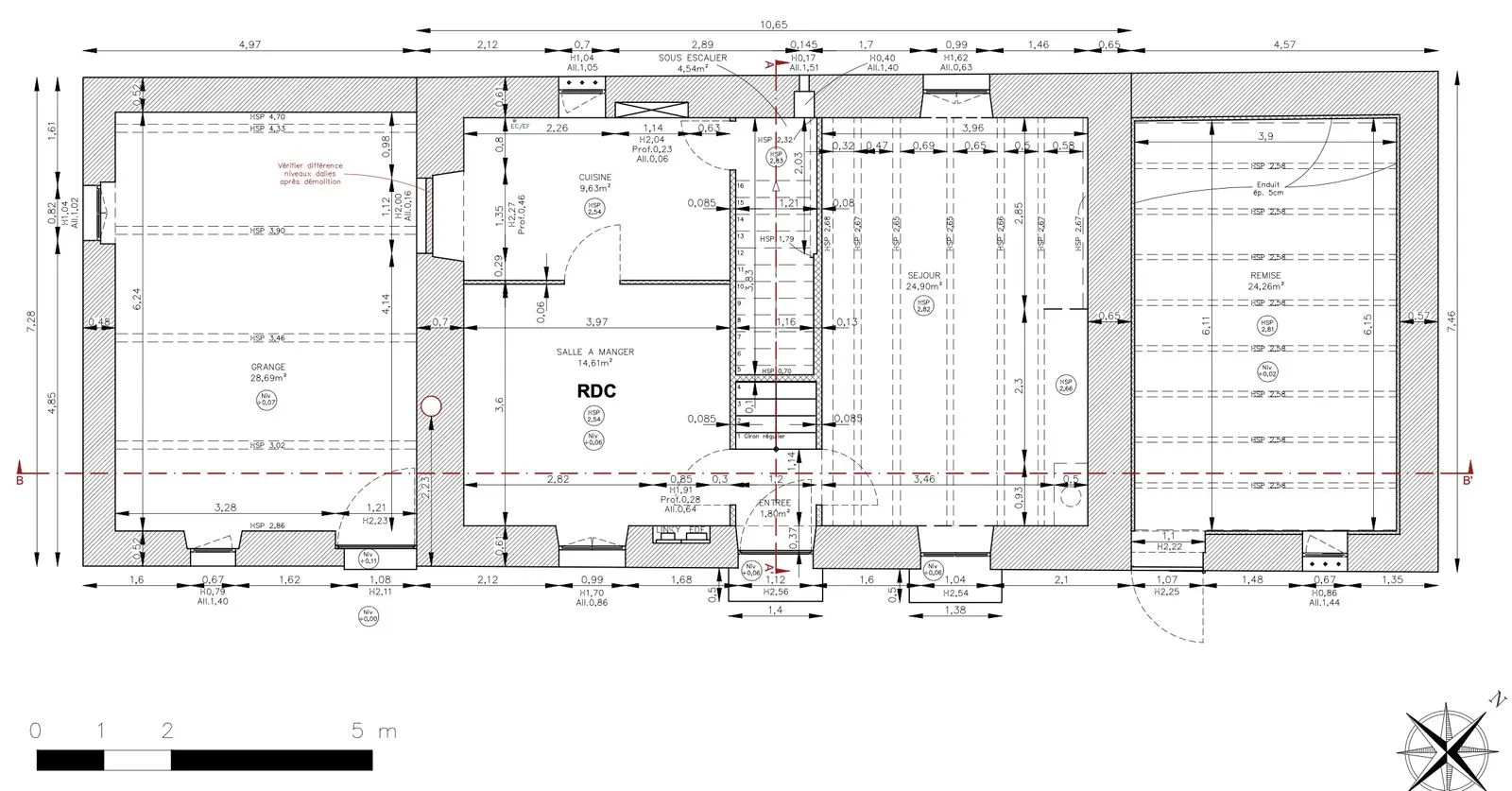
Projet de rénovation d’une clairgerie avec utilisation de matériaux biosourcés et respect architectural. Les travaux comprennent la reprise de la toiture, des planchers et des façades, les VRD, l’électricité, la plomberie générale, la démolition, ainsi que la mise en place d’un système de chauffage complet.
Chaque projet raconte une histoire différente. Découvrez nos réalisations récentes, imaginées et menées avec la même exigence et le même savoir-faire.
Vous aussi, bénéficiez d’un accompagnement rigoureux et humain
pour votre rénovation ou extension.